A $3.6 million referendum that would allow Hamilton’s Fire District No. 9 to make repairs on its station will be up for voter approval during a Dec. 3 special election.
The ballot measure would fund a multi-phase restoration project at the 16,000-square-foot Crosswicks-Hamilton Square Road property, known as the Groveville Fire Station.
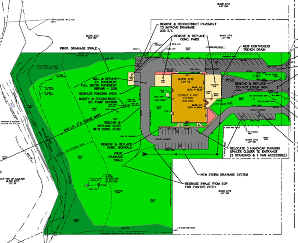
“There will be no change to the footprint,” said Thomas Perrino, a principle with Spiezle, an architectural firm that conducted the station’s recent site survey. “But after nearly three decades, many aspects of the building are reaching the end of their useful life. These repairs are necessary to bring the property up to code so that it meets Americans with Disability Act standards, as well as to maximize its energy efficiency.”
Fire officials said the infrastructure is due for a number of improvements—both internal and external—to include lighting and a roof replacement, repairs to the concrete aprons, asphalt, sidewalks and structural damage, installation of a modern emergency generator and updates to the electrical, communication and security systems.
The district plans to acquire funding through a bond issuance from the Mercer County Improvement Authority’s pooled financing program. Participation in the program would obligate the district to repay $250,000 annually over a 20-year period.
“We just repaid our mortgage in full, which amounted to $250,000 per year,” District Fire Chief Mark Antozzeski said. “That means that taxpayers will see no increase due to this building project if the referendum passes.”
Every day, there are four full-time, 24-hour, on-duty call staff members occupy the station, amounting to one fire captain, one driver and two firefighters. During the weekday hours, the fire chief and fire inspector are also on-duty.
Collectively, the station’s firefighters responded to over upwards of 1,200 calls in 2015 alone.
“That’s 12 times the number of calls we received when we first opened our bay doors back in 1988,” Antozzeski said. “This is reflective of the population growth in our township.”
While the prospect of a municipal fire district consolidation still looms, district officials said that both operational costs and any incurred debt would be evenly distributed throughout the township’s tax base if that scenario comes to fruition.
“Because of our strategic location in Hamilton Township and our area of fire service coverage for both the residents and the businesses, no matter the outcome of the consolidation process, our firehouse will remain a vital part of the towns public safety operations,” Dimeo said.
The fire district will host a public information presentation with questions and answers on their regular scheduled meeting, Nov. 30 at 7 p.m. The special election will be held on Dec. 3 at its 4201 Crosswicks-Hamilton Square Road locale from 2 p.m. to 9 p.m.
Referendum highlights include:
Site: Hamilton Township Fire District No. 9/Groveville Fire StationCoverage Area: 11.5 square miles in the township’s southern end or approximately 25 percent of HamiltonCapital-Improvement Proposal: $3.6 millionStructure Size: 16,000-square feetBuildings Age: 28 years oldExternal Improvements: Roof replacement and repairs to concrete aprons, asphalt and sidewalksInternal Improvements: Replacement of lighting and an emergency generator, updates for electrical, communications and security systems and repairs to minor structural damageCost Savings: On annual maintenance repairs and energy-efficiency units24-Hour Staff: Four full-timers—one fire captain, one driver and two firefightersStaff in Total: 18 uniformed fire personnel: One fire chief, one fire inspector, four captains, and 12 firefightersNumber of 2015 Call Responses: 1,250Funding: A Bond Issue through the Mercer County Improvement AuthorityAnnual Repayment Schedule: $250,000 over the course of 20 yearsTax-Rate Increase: $0 (Flat)Current Tax Rate: 2016adjusted to $.31/$100 valueSpecial Election’s Referendum Date: Saturday, Dec. 3

Hamilton’s Fire District No. 9,

